Meni

KR
Pošaljite upitKR
  • Početna
  • Lux Vile
  • Zašto Kosmaj Rose
  • Kvalitet gradnje
  • Investitor
  • Lokacija
  • Galerija
    • Video projekta
    • Enterijer vila
    • Eksterijer i spoljno uređenje
  • Kontakt

KOSMAJ ROSE RESIDENCES
VILA TIP 2

PLAC

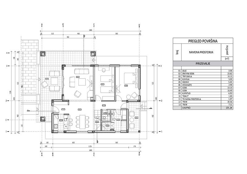
SPRATNA KUCA PRIZEMLJE

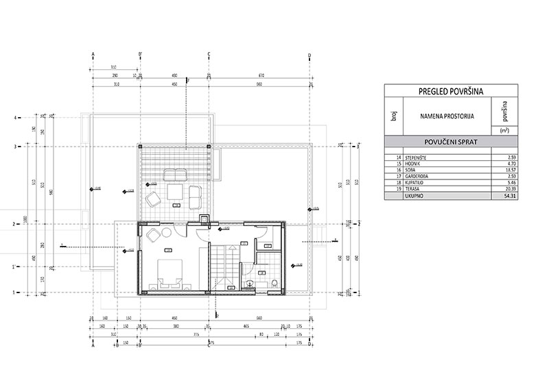
SPRATNA KUCA SPRAT

  • POZOVITE
  • PIŠITE
KR

Pozovite

+381 63 83 23 935
+381 11 40 42 065

RADNO VREME
PON - PET: OD 08 - 16 h.
SUB: 09 - 13h

KR

Email

prodaja@kosmajrose.rs
KR

Adresa

JURIJA GAGARINA 30 B,II/7


POŠALJITE UPIT!

Ukoliko ste zainteresovani za kupovinu vile ostavite nam Vaše podatke i naš prodajni tim će vas kontaktirati.

Copyright © KOSMAJ ROSE 2021. Sva prava zadržana. Kodirao NetBitLab Digitalni marketing